 
      3 BEDROOM End of Terrace House
£475,000
Asking Price
Harcourt Road, Bracknell, Berkshire, RG12
Freehold
- 3 bed
- 1 bath
- 2 receptions
Full description
BEAUTIFULLY REFURBISHED THREE BEDROOM END OF TERRACE HOME in a Prime Bracknell Location, Corner Plot Garden and Off Road Parking.
Ideally located near Bracknell town centre and the Lexicon Shopping Centre, yet close to the natural beauty of Swinley Forest, this exceptional three bedroom end of terrace home has been fully transformed by the current owners.
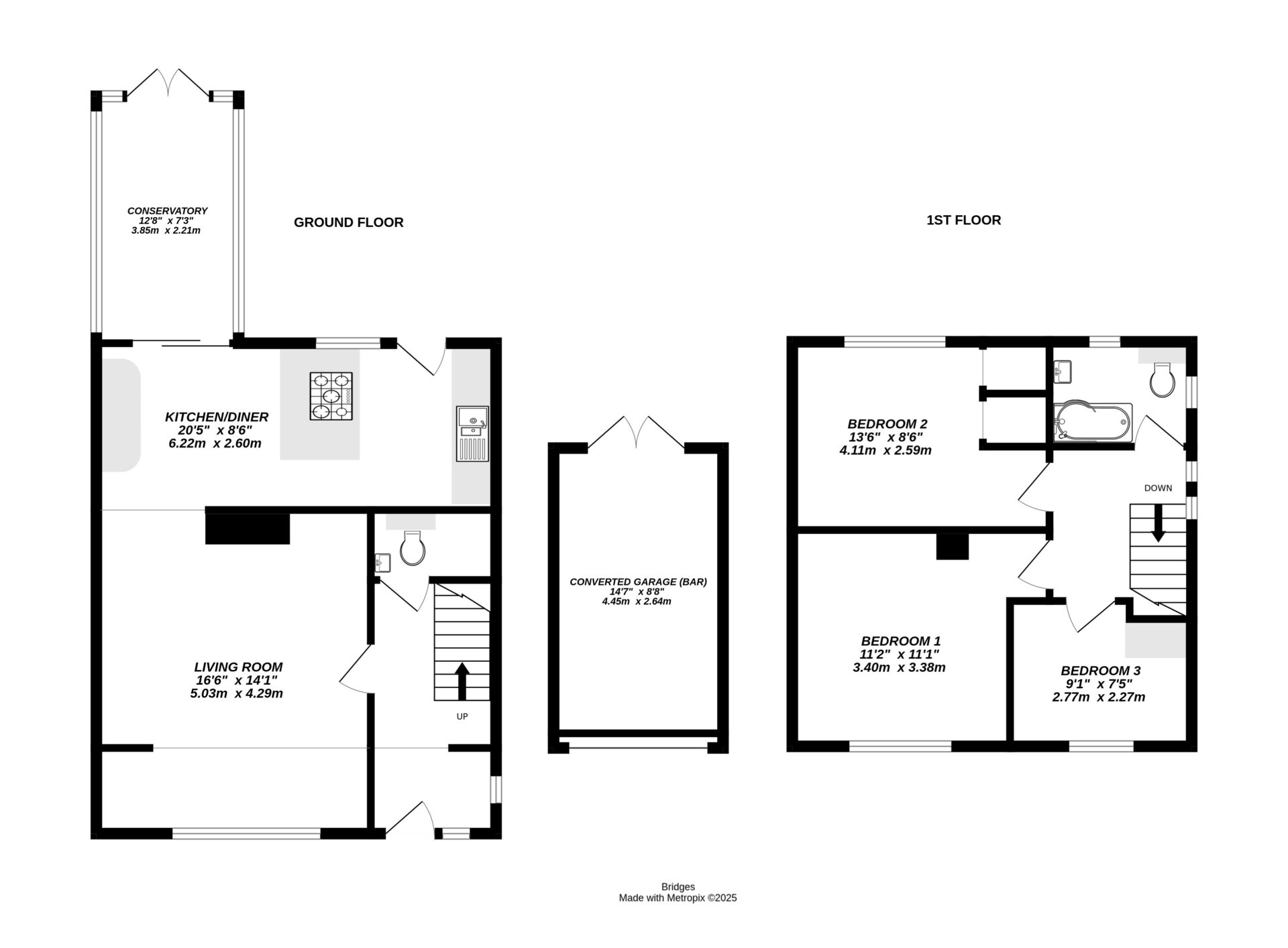
The extended entrance hall creates a spacious and welcoming entryway with ample storage, and the upgraded cloakroom doubles as a practical utility area. The living room features a charming brick built open fireplace and flows into a stylish kitchen/diner, complete with a central island, five burner gas hob, waist level double oven, integrated dishwasher, and fridge freezer.
A generous conservatory provides additional living space, and the modernised bathroom includes a shower bath with a rain shower head.
Upstairs, a bright and versatile loft room, with flooring, eaves storage, power, lighting, and a skylight?is ideal as a study, hobby room, or extra storage.
Outside, the spacious corner plot offers a good sized garden, off road parking for multiple vehicles, and a repurposed space from the former garage.
Property Summary
Three Bedrooms
End of Terrace Home
Potential to Extend Subject to Planning
Multi Use Loft Space
Living Room with Open Fire
Refitted Bathroom
Converted Garage Room
EPC: D (59)
Council Tax Band: C
FIND OUT HOW MUCH YOU CAN BORROW
Stamp duty calculator
Mortgage calculator
 
            
             
            
            
             
             
             
             
             
             
             
             
             
             
             
             
             
             
             
             
             
             
             
                    

















 
           
           
           
           
           
           
           
           
           
           
           
           
           
           
           
           
           
           
           
       
      


