3 BEDROOM Detached House
£575,000
Asking Price
Ively Road, Fleet, GU51
Freehold
- 3 bed
- 2 bath
- 1 receptions
Full description
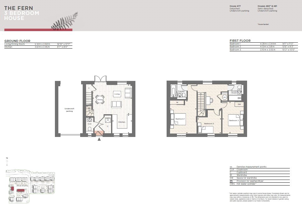
DETACHED THREE BEDROOM FAMILY HOME – Located Close to Hartland Village Country Park
Plot 477 is a beautifully presented three bedroom detached home set over two well designed floors. Step into a spacious hallway that leads to a convenient cloakroom, storage cupboard, and a bright open plan living/dining/kitchen area complete with integrated appliances. French doors open onto a private, enclosed rear garden, thoughtfully laid to both patio and lawn, ideal for outdoor living.
Upstairs, the principal bedroom features a sleek en suite, while two further bedrooms and a contemporary family bathroom provide ample space for family, guests, or a home office.
Combining modern design with everyday practicality, Plot 477 offers the perfect setting for comfortable, contemporary living.
Welcome to the Houses Collection at Pinewood Green, the new phase of homes at Hartland Village, set amid rich natural woodland and expansive green open space. With a choice of two and three bedroom houses, all beautifully designed and finished with a true sense of craftsmanship, there is sure to be a home to suit your lifestyle.
Pinewood Green will also be home to the village green and village centre, with its amenities and new school, so you can enjoy all the ease, sociability, and convenience of living just a short stroll from daily essentials. Hartland Village already has a vibrant and diverse community ready to welcome you, and these new facilities will enhance it even further. This is a place where people come together, build relationships, and create a rich and fulfilling life for everyone to enjoy.
*Please note: Photos are of the development and may not represent the exact property.
Property Summary
Three Double Bedrooms
Detached House
Open Plan Living/Dining/Kitchen
Integrated Appliances
Dressing Area and En Suite to Principal Bedroom
Enclosed Rear Garden
Parking
EPC: TBC
Council Tax Band: TBC
FIND OUT HOW MUCH YOU CAN BORROW
Stamp duty calculator
Mortgage calculator




