
3 BEDROOM Detached House
£1,900 pcm
Woburn Avenue, Farnborough, Hampshire, GU14
- 3 bed
- 2 bath
- 2 receptions
Full description
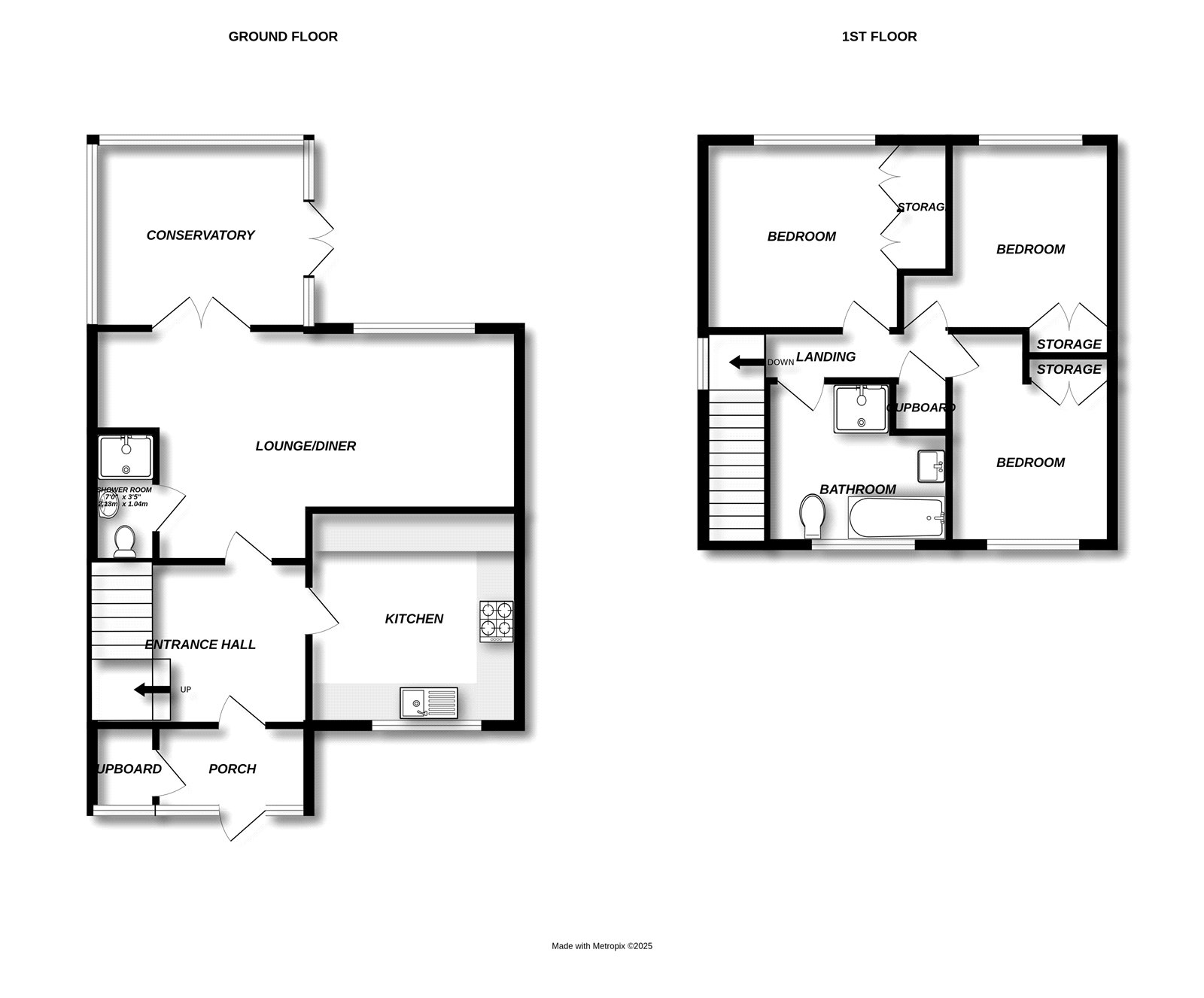
Available Late November (Unfurnished) – This three-bedroom detached house is the perfect family home and is situated within a desirable area. The accommodation includes: living/dining room, kitchen with appliances, plus bathroom.
To speed up the reservation process, we recommend you attend all viewings with your original right to rent documents; photo ID (passport) plus a proof of address (e.g. drivers license/utility bill/bank statement dated within the last three months). SECURITY DEPOSIT: £2,192.31.
Property Summary
Three Bedroom Detached House
Living/Dining Room
Kitchen with Appliances
Bathroom
Garden, Driveway and Garage
Perfect Family Home
Desirable Area
EPC: D (67)
Council Tax Band: E
FIND OUT HOW MUCH YOU CAN BORROW
Stamp duty calculator
Mortgage calculator














