2 BEDROOM Flat / Apartment
£220,000
Asking Price
Bell Chase, Aldershot, Hampshire, GU11
Leasehold
Apartment Department
- 2 bed
- 2 bath
- 1 receptions
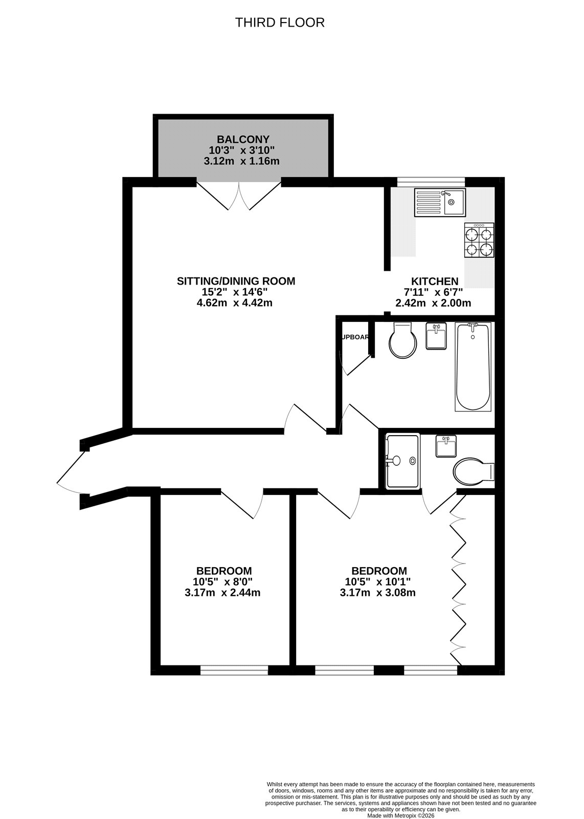
Full description
TWO BEDROOM APARTMENT WITH TWO BATHROOMS IN ?TURNKEY CONDITION? Situated Close To Aldershot Town Centre And Local Transport Links.
This immaculately presented, spacious two bedroom apartment is offered to the market as an ideal investment or a first time buy. The accommodation boasts a lounge, two double bedrooms with an en suite to the main, family bathroom and fitted kitchen. Throughout the property the apartment is partial to multiple improvements made by the current owners. Further benefits include double patio doors from the lounge to a balcony. The property is located close to Aldershot town centre and the Westgate Centre. As the vendors sole agents, we would highly recommend an internal inspection of one of the better apartments in this highly sought after development.
Property Summary
Two Double Bedrooms
Ensuite to The Principal Room
Balcony
Perfect for First Time Buyers and Investors
Close to Local Shops and Amenities
Est Rental: £1350 per month
'Turnkey Condition'
EPC: C (76)
Council Tax Band: C
FIND OUT HOW MUCH YOU CAN BORROW
Stamp duty calculator
Mortgage calculator















