 
      3 BEDROOM Semi-Detached House
£350,000
Offers Over
Cripley Road, Farnborough, Hampshire, GU14
Freehold
- 3 bed
- 1 bath
- 2 receptions
Full description
HOT NEW LISTING – FAMILY HOME WITH SPACE, PRIVACY AND FIELDS AT THE BACK DOOR! In the Heart of Cove, Close to Schools, Shops and Great Transport Links
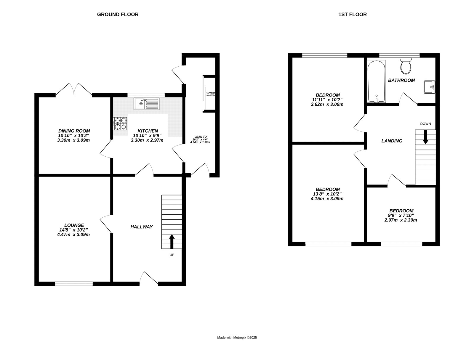
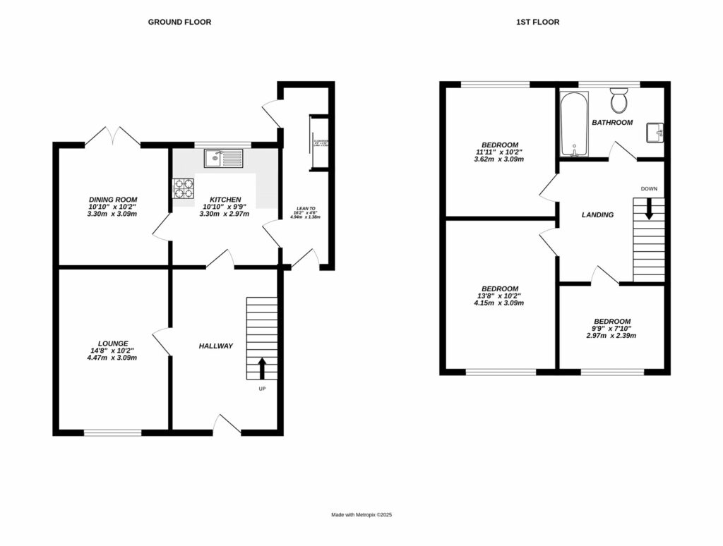
*Completed Chain* This three bedroom semi-detached home, set in the heart of Cove, is an ideal purchase for families. The ground floor features two bright and spacious reception rooms, with double doors from the dining room opening directly onto the garden. The kitchen is fitted with built-in appliances and offers ample worktop space, complemented by a generously sized entrance hall. Off the kitchen, a useful lean-to provides additional space that can be utilised as a utility area or as direct access to the garden, alongside a convenient downstairs cloakroom. Upstairs, there are two well-proportioned double bedrooms and a generous single, all served by a family bathroom. Early viewing is highly recommended to avoid missing out!
Property Summary
Three Double Bedrooms
Two Reception Rooms
Completed Chain
Fitted Kitchen and Cloakroom
Lean-To with Utility Space
Private Garden
Open Fields and Greenery
EPC: D (65)
Council Tax Band: C
FIND OUT HOW MUCH YOU CAN BORROW
Stamp duty calculator
Mortgage calculator
 
            
             
            
            
             
             
             
             
             
             
             
             
            







 
           
           
           
           
           
           
           
           
           
       
      


