3 BEDROOM Detached House
£500,000
Asking Price
Westwood Lane, Normandy, Surrey, GU3
Freehold
- 3 bed
- 1 bath
- 2 receptions
Full description
STUNNING RENOVATION OPPORTUNITY ON AMAZING PLOT
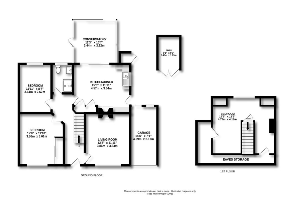
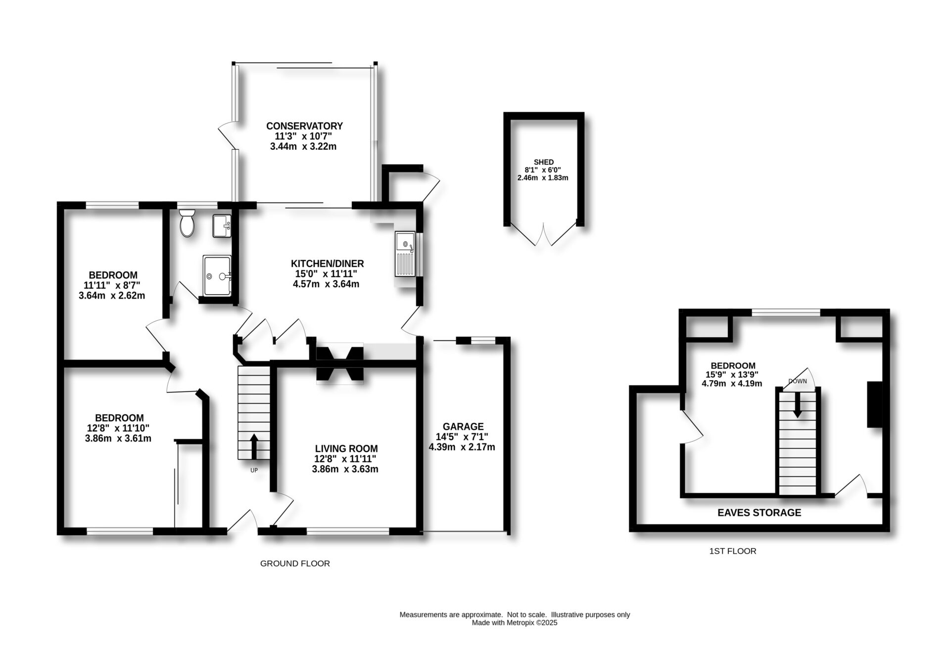
Offered to the market with no onward chain, this detached chalet bungalow is available for the first time in decades and presents an exciting opportunity to extend and enhance (STPP). Perfectly located within walking distance of Wanborough Station and just minutes from Guildford, with easy access to the A31 for Farnham and beyond, the property sits on a generous quarter-acre plot.
The frontage features a spacious driveway with parking for multiple vehicles, side access, and a garage. Inside, a welcoming hallway leads to a bright living room on the right, with two bedrooms to the left. To the rear, there is a bathroom and a kitchen/diner opening into a conservatory, which enjoys views across the extensive rear garden. Upstairs provides a further bedroom, useful storage, and rearward views.
This is a rare chance to secure a home with huge potential, whether as an investment or a long-term family residence. Viewings are strictly by appointment only, please contact us today to arrange yours.
Property Summary
Three Bedroom
Detached Chalet Bungalow
1/4 Acre Plot
No Chain
Incredible Potential to Extend STPP
Garage and Plenty of Driveway Parking
Close to Wanborough Train Station
EPC: E (43)
Council Tax Band: E
FIND OUT HOW MUCH YOU CAN BORROW
Stamp duty calculator
Mortgage calculator




























