 
      4 BEDROOM Detached House
£625,000
Asking Price
Pondtail Road, Fleet, Hampshire, GU51
Freehold
- 4 bed
- 1 bath
- 3 receptions
Full description
OFFERED WITH NO ONWARD CHAIN! Desirable Pontail Area This Four Bedroom Detached Family Home
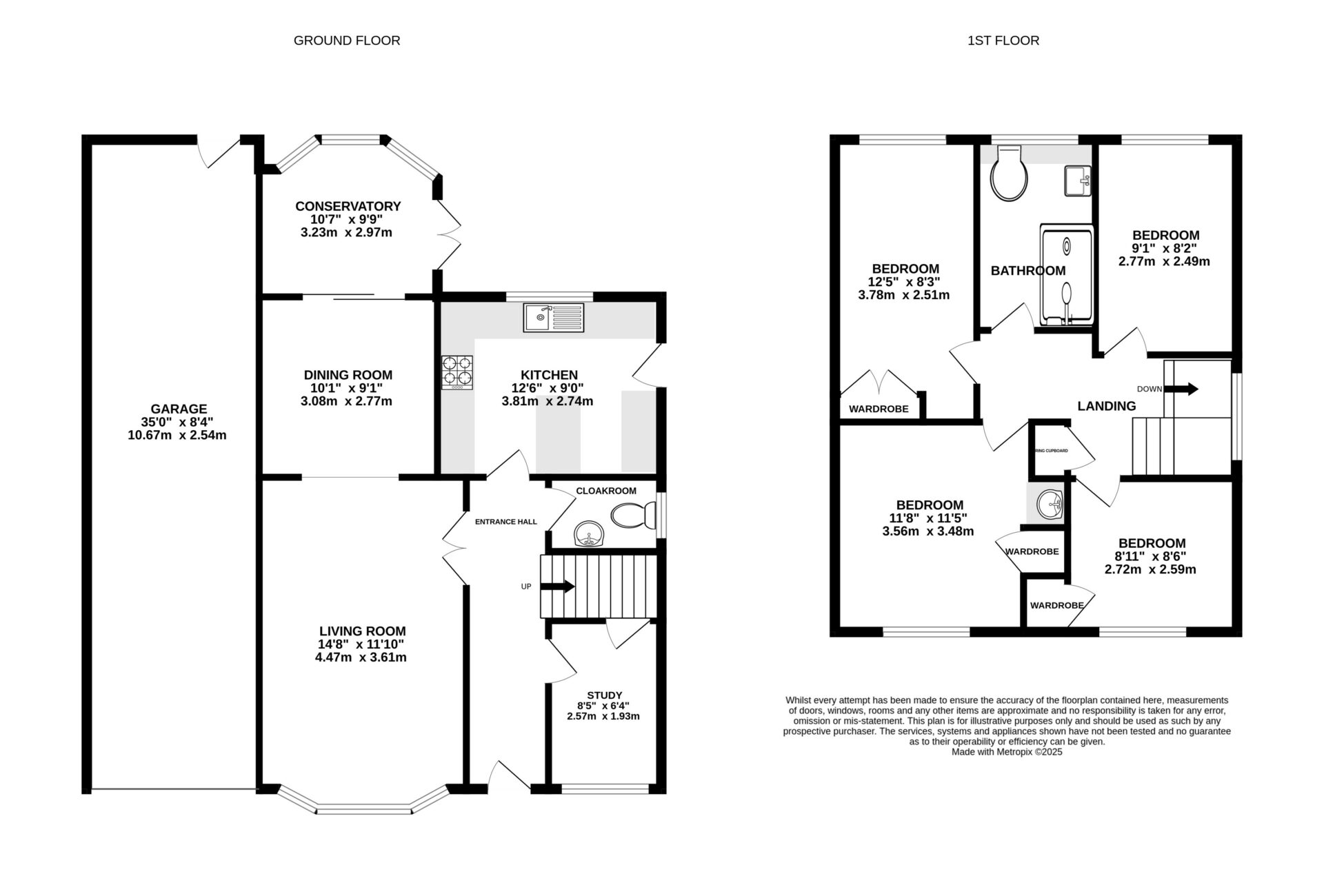
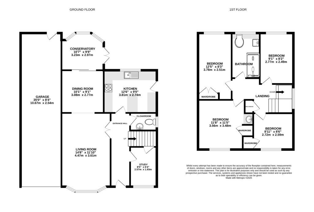
Located in the highly sought-after Pondtail area of Fleet, this spacious four bedroom detached family home is offered to the market with no onward chain and presents an excellent opportunity for those looking to settle in a well-regarded residential location. The property benefits from being within the catchment area of several highly rated schools and is just a short walk from the beautiful Fleet Pond Nature Reserve, offering the perfect blend of convenience and natural surroundings. Internally, the well-proportioned accommodation comprises an inviting entrance hall, cloakroom, a front-facing study ideal for home working, a generous living room with views over the garden, a formal dining room, and a well-equipped kitchen. The ground floor also benefits from an extended garage, providing additional storage or potential for conversion (STPP). Upstairs, the first floor offers four well-proportioned bedrooms, each with ample space for furnishings, along with a family bathroom serving all bedrooms. Externally, the property enjoys a private rear garden, a driveway providing off-street parking, and access to the extended garage. With scope for further improvement or extension (STPP), this property offers an exciting opportunity to create a long-term family home in one of Fleet’s most desirable locations. Viewings are highly recommended and strictly by appointment only.
Property Summary
Four Bedrooms
Detached Family Home
Three/Four Reception Rooms
Pondtail Area
No Onward Chain
Extended Garage
Conservatory
EPC: D (67)
Council Tax Band: F
FIND OUT HOW MUCH YOU CAN BORROW
Stamp duty calculator
Mortgage calculator
 
            
             
            
            
             
             
             
             
             
             
             
             
             
             
             
             
             
             
            













 
           
           
           
           
           
           
           
           
           
           
           
           
           
           
           
       
      


