Full description
Build Your Dream Home
Looking to build your own home, then stop looking. This is a single building plot situated between Ascot and Bracknell in the Parish of Winkfield and has planning approved for a four bedroom, 2,140sq. ft family home. As a self-build there is no liability for CIL however planning conditions will still need to be met. (Bracknell Forest Planning Ref: 21/01047/FUL).
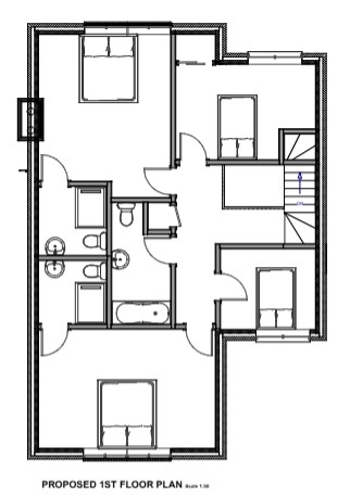
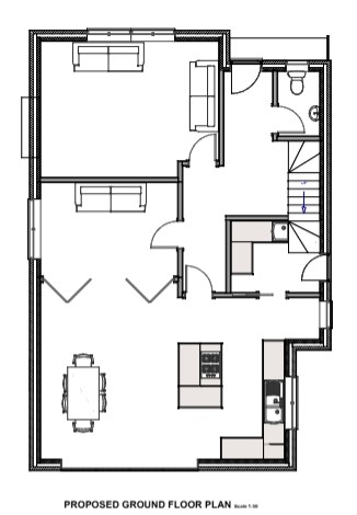
Once completed the property will benefit from four bedrooms, two en suites, family bathroom, kitchen/dining/family room, separate lounge, utility room and cloakroom. Off road parking for three cars and a rear garden in excess of 80ft.
The plot is within half a mile of Martins Heron train station making it perfect for commuters. Well connected for Ascot racecourse, Heatherwood hospital and a wide range of amenities including The Lexicon shopping centre.
Schooling is well catered for with numerous private schools and state schools within easy reach.
Property Summary
Self Build Opportunity
Four Bedrooms Detached House
Planning Granted
No Cil
Great location
Ascot Border
FIND OUT HOW MUCH YOU CAN BORROW
Stamp duty calculator
Mortgage calculator










